Architectural Firm Projects
Overview: The following page contains all the work I have done for professional architectural firms.
Architectural Firm Projects
Overview: The following page contains all the work I have done for professional architectural firms.
The following working study model was constructed during a 3 week intership for my senior project at Collegiate School. This was my first exposure to the world of architecture as well as a lerning experience in profesional architectural model building.
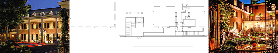
The following represents a sample of the AutoCAD construction documents I worked on for the historical Carolina Inn renovation and expansion at the Univeristy of North Carolina in Chapel Hill, North Carolina. I also sat in and helped during design meetings for this project..

The following represents a sample of the AutoCAD plan, section, and elevation documents I worked on for the consturtion of this private residence house in Richmond, Virginia.

This 20 x 25 foot walk-on model was constructed as a group effort over a 2 week period for the planning committee on the renovation of Monroe Park in Richmond, Virginia. The plans called to add modern amenities as well as follow close to the original historic master plans from the 1800s. The main purpose of this model became fundraising and was shown to numerous city officials as well as the mayor of Richmond. Listed below is an article published in the Richmond Times Dispatch with the model in the background and explaining the project.

